SURVICE 取り扱いサービス一覧

フォークガード

物流倉庫や工場の壁面等に使用します。フォークリフトの爪から建物をガードいたします。

フォークガード製品写真

フォークガード製品写真

フォークガード製品写真

フォークガード製品写真

仕上げ

  • 粉体焼付塗装の為、綺麗な仕上がりです。
  • 塗装色は日本塗料工業会の色票番号にて指定色の塗装が可能です。
  • ステンレス製も製作可能です。

取付け

  1. 設置場所の確認
  2. フォークガード設置位置の決定
  3. アンカーボルト穴穿孔
  4. アンカーボルト設置
  5. フォークガード設置
  6. 養生
  7. 最終確認

※粉体焼付塗装にて納入の為、取り付け後の塗装手間はありません。

納期

ご発注から納入まで約3か月となります。
受注生産品の為、納期は余裕を持ってご発注をお願いします。

ニーズ

物流倉庫、各種工場でご使用いただけます。
お客様のニーズに合わせ製作いたします。

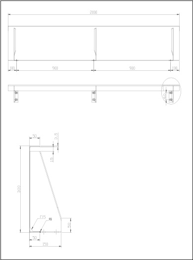
フォークガード参考図

製品概略図

トップへ戻る